Des terrains prêts à accueillir vos projets
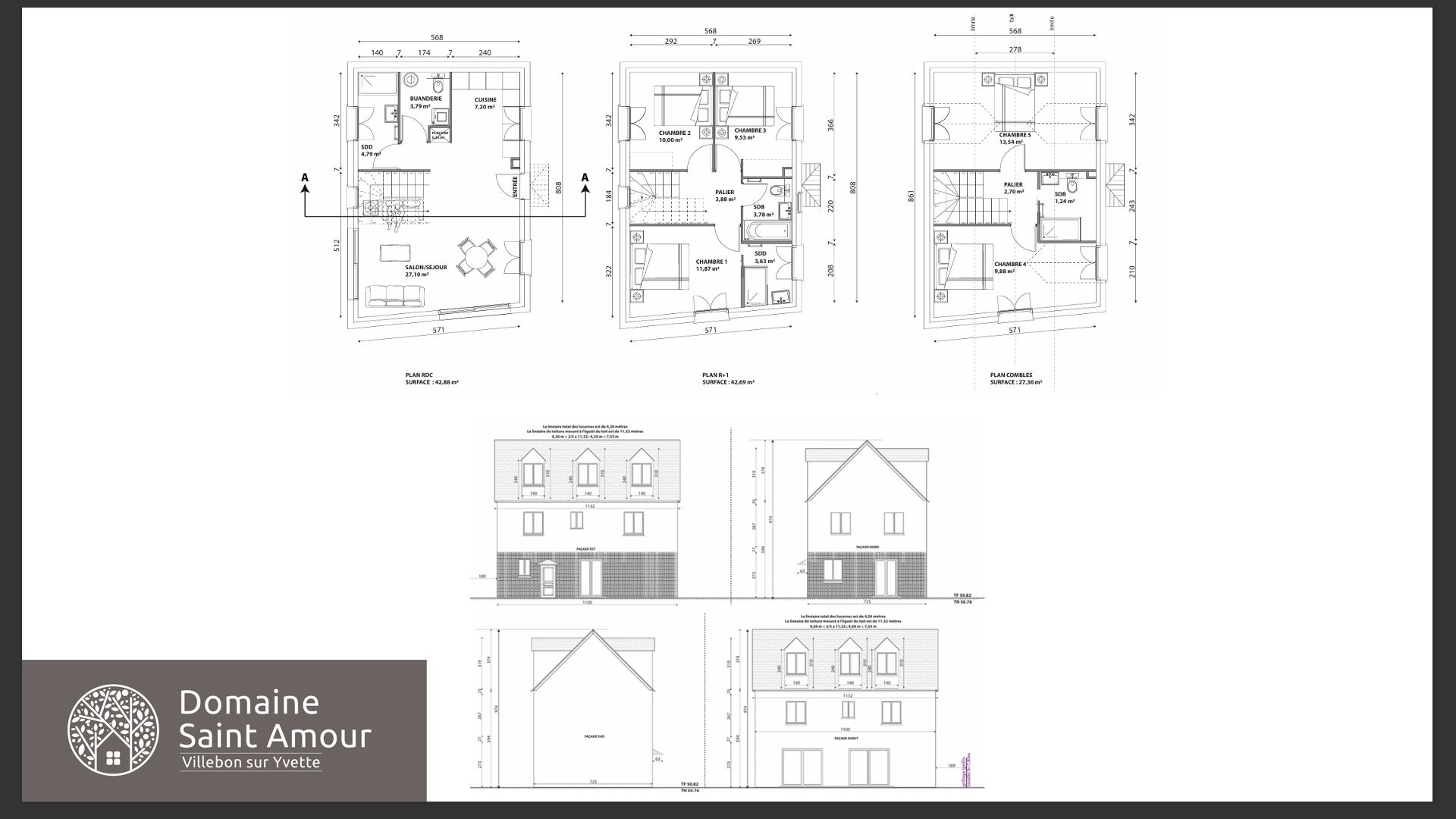
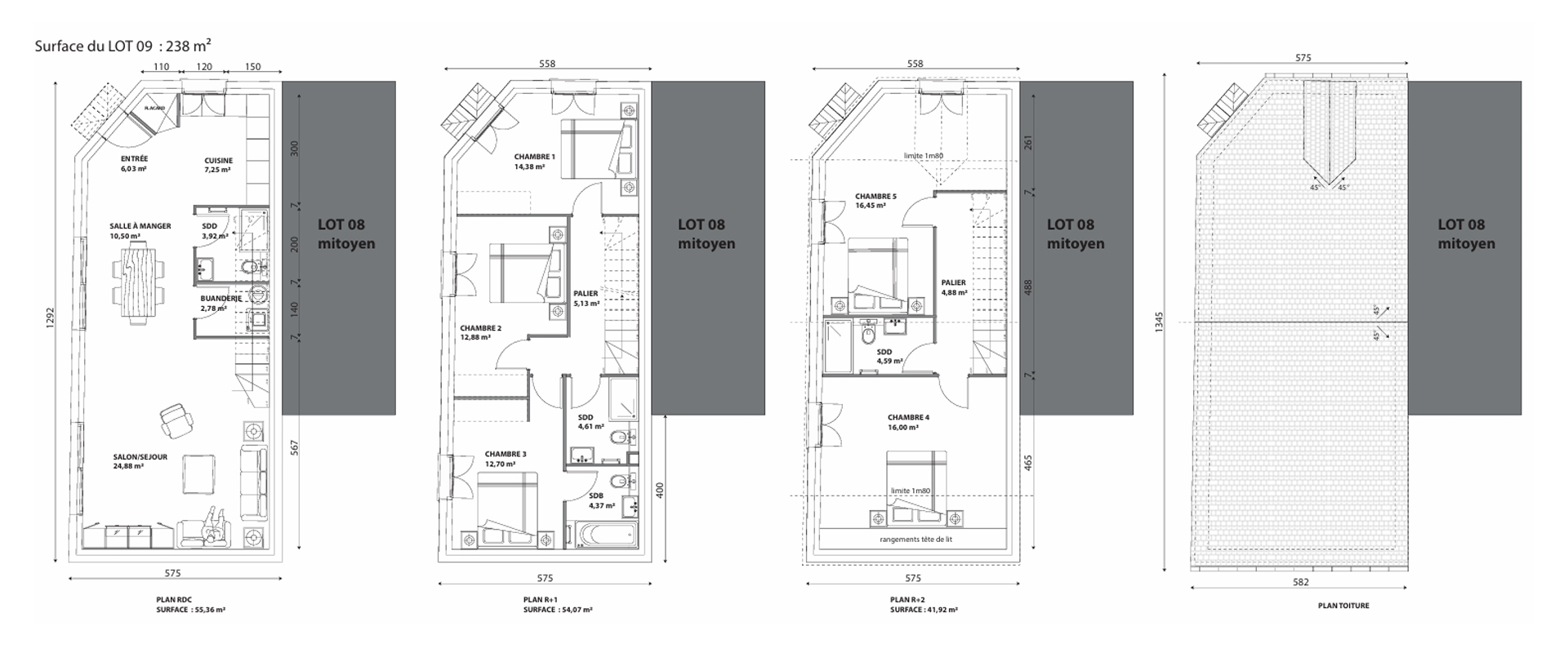
Que vous rêviez d’une maison familiale ou d’un projet plus compact, nous proposons des parcelles de 230 à 450 M2 adaptées à tous types de projets. Nous proposons soit les maisons prêtes à aménager et à décorer, soit les terrains nus. Dans ce cas de figure, nous proposons pour chaque lot, des plans architecturaux offrant des surfaces habitables entre 120 et 165 M2 associées à un jardin et un garage.
Vous pourrez aller à pied aux centres sportifs juste à côté, il propose des terrains de tennis, de padel, de rugby, de football… à découvrir dans la rubrique « environs et services ».
N.B. Nous vendons soit les maisons prêtes à aménager et à décorer à partir de 370 000 €, soit les terrains constructibles à partir de 185 000 €. Dans ce cas, la construction est à la charge du propriétaire, nous pouvons vous accompagner sur ce volet en temps 2. (Photos non contractuelles).
Vous avez une question? Raphaël Gruson vous répond (coordonnées en bas).
Retrouvez quelques exemples de plans de situation et de disposition des maisons ici, vous avez le choix de disposition et de surface. Une simulation ? Contactez-nous
Les premières maisons livrées du Domaine Saint Amour
Les 3 premières maisons ont été construite directement par les propriétaires des terrains.
Conformité administrative effectuée

- Dépôt et validation administrative des permis et des plans,
- Validation géologique et conformité des sols,
- Négociation et suivi des travaux de voirie,
- Exécution des travaux de voirie et des VRD,
- Pilotage global et validation des obligations administratives et légales.
Viabilisation et Permis accordés

- Relevé et dépôts au cadastre du domaine et de chaque terrain,
- Permis de construire accordés pour les 15 terrains,
- Conception, création des plans d’architecture des maisons,
- Accompagnement et conseils sur le choix des lots suivant le projet de vie,
- Suivi des premiers projets livrés,
- Accompagnement et conseils pour votre projet.
Travaux préalables d’aménagement

- Raccordement électrique,
- Raccordement au réseau d’eaux,
- Délimitation des terrains,
- Réalisation de la voie centrale avec son retournement.
- (Photo non contractuelle)


